




















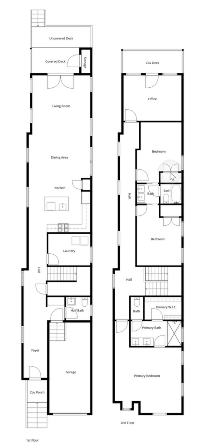
Fall in love with this beautiful West Nashville cottage, located just minutes from the Nations/Charlotte Park/Sylvan Park dining scene, McCabe/Richland Park, Target, and Belle Meade shopping. Step inside through the 8-foot front door to an abundance of natural light that fills the open-concept kitchen, dining, and living areas. The kitchen is crisp and bright with quartz countertops, stainless steel appliances, and a gas range. The primary suite continues the home's light and airy aesthetic with a generously sized walk-in closet and an oversized tile shower. Upstairs, a versatile bonus room--ideal for an office or den--opens to a covered balcony. Don't miss your opportunity on this charming home in a fantastic location!
Get assistance in determining current property value, crafting a competitive offer, writing and negotiating a contract, and much more. Contact me today.
Let's Connect